上海触福网络科技有限公司
首页
企业简介
产品大全
联系我们
企业信息
访客留言
产品列表
PRODUCT
探秘平面设计的艺术 从设计图到素材下载,再到电脑图文设计
现代工厂绿化平面设计CAD方案图解析与图文设计要点
探索平面设计的无限可能 从素材到精品设计图的全方位指南
平面设计素材宝典 精品设计图下载与电脑图文设计全攻略
植物美学与功能并重 Plantronics移动产品包装设计的创新实践
Jacobs Design Studio 一站式专业设计解决方案
6万平米污水处理厂全套图纸深度解析 从平面设计到给排水工艺
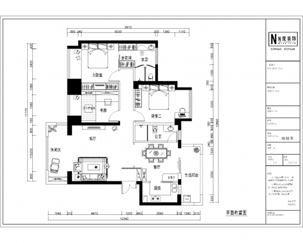
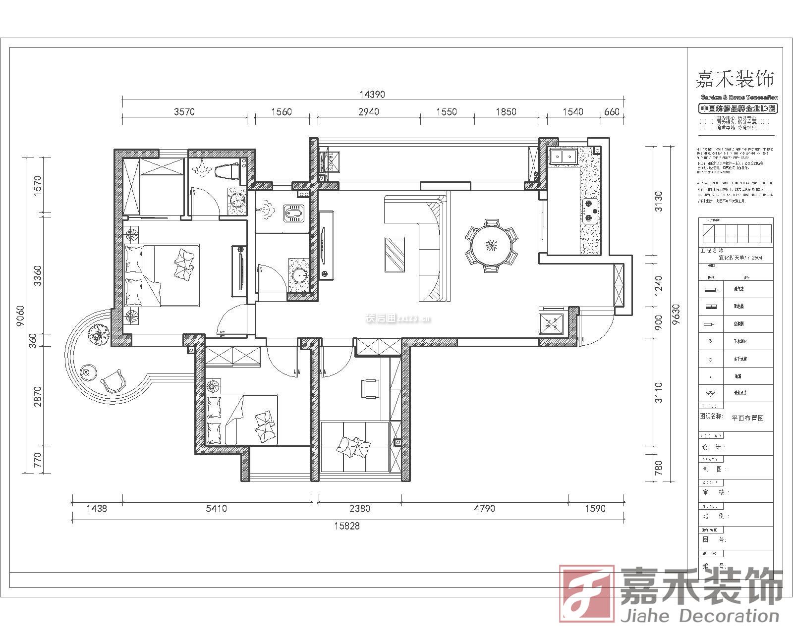
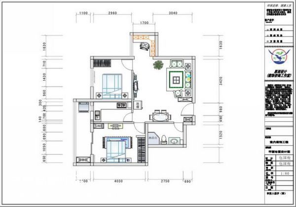
欧式奢华典范 精品豪华别墅CAD施工图与平面设计解析
精品牌坊SU模型与CAD图纸资源全解析
食品饮料生产加工设备CAD图纸设计与平面图下载指南
中心实验室电脑图文设计 技术与创意的融合之道
创意空间感海报设计参考 电脑图文设计的艺术探索
作品集 电脑图文设计的多元探索与品牌视觉构建
室内设计顶视图 电脑图文设计的艺术
《Kisskitting》亚克力画册 一场关于编织与视觉的创意对话
平面设计与电脑图文设计 数字时代的视觉艺术与技术融合
融合极简美学与科技 Cleanlab 韩国食品包装的品牌形象平面设计解析
专业酒窖深化设计图库 高效拆单与全屋定制CAD图纸解决方案
精品衣柜与全屋定制 CAD图集平面设计图资源指南
视觉盛宴,创意飞扬——GDC17平面设计在中国展全球巡展南宁站即将启幕
如若转载,请注明出处:http://www.chufu8.com/product/list-2.html
1
1
2
3
4
5